Une première série de données complémentaires à la description faîte par Jonas.
Pourquoi ce choix ? La petite histoire
Besoin de conserver les légumes, au frais l'été (quelques jours) mais surtout les protéger du froid l'hiver. Présence de campagnols sur le site, d'où réticence à faire des silos traditionnels ; la 'chambre froide' réalisée avec des bottes de paille pendant 2 années de suite n'a pas permis de protéger efficacement les légumes de ces prédateurs.
J'ai alors pris connaissance du livre des éditions Ulmer (que je recommande, surtout pour ses exemples de réalisation). Il se trouve que le niveau du sol du côté de la façade du bâtiment orientée au nord est sous le niveau de la dalle, permettant d'avoir facilement une dénivellation d'1 mètre.
Enfin, la 'technique' pour avoir une température et une hygrométrie régulées me paraissait plus évidente que pour une "chambre froide bien conçue" (ce que je ne me sentais pas capable de faire d'ailleurs).
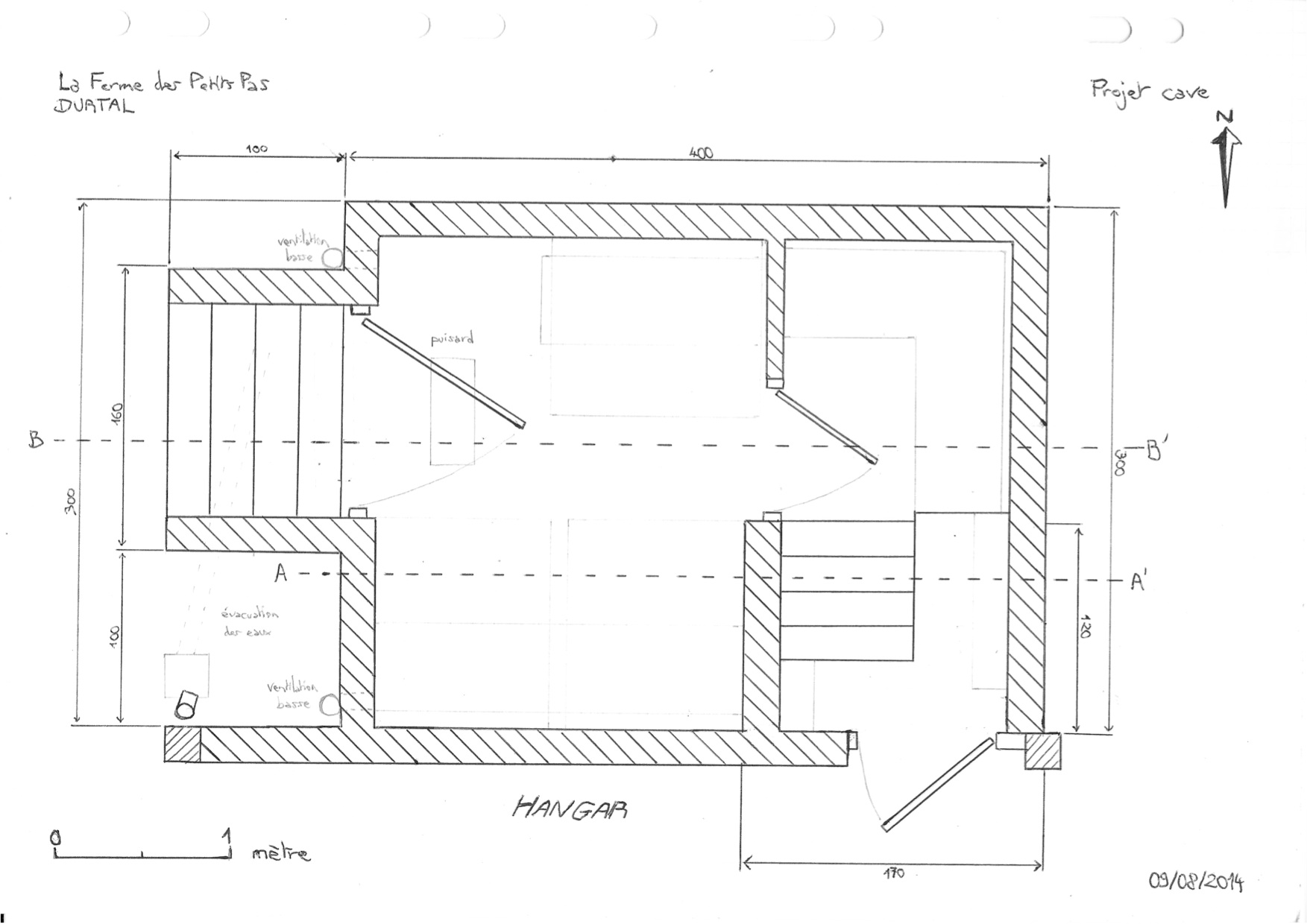
Surface totale :
Environ 9,5 m2
Coût global :
La facture du maçon (qui a aussi effectué le terrassement) s'élève à 5 800 € HT. Il a fallu dépenser quelques dizaines d'euros supplémentaires pour fabriquer les portes, l'escalier en parpaings et approvisionner le matériel pour les étagères.
Temps de réalisation :
Difficile à évaluer car la cave a été réalisée en plusieurs étapes. J'estimerais à environ 2 semaines avec l'aide du maçon.
La réalisation complète a été effectuée avec l'aide d'un professionnel, de la main d'oeuvre familiale et amicale.
Il me semble que la plupart des travaux de ce chantier peuvent être réalisés en autoconstruction pour peu que l'on ait de bonnes bases en maçonnerie. Pas de toupie nécessaire, tout le béton a été fait à la bétonnière. Là où cela se corse, c'est pour le terrassement.
L'accompagnement par le maçon s'est très bien déroulé. Il a validé mon projet et effectué quelques modifications pertinentes pour améliorer le projet.
Problèmes rencontrés / Difficultés / Erreurs à éviter :
Rien de particulier mais il faut prendre du temps pour la conception. La principale difficulté pour pouvoir envisager cette construction de manière autonome concerne le terrassement qui nécessite une mini-pelle.
Il faut par ailleurs bien réfléchir à la gestion de l'humidité et à l'évacuation de l'eau (trop-plein, drain).

- Plan initial. Quelques modifications ont été apportées en cours de chantier.
- Plan détaillé cave.jpg (233.8 Kio) Consulté 5253 fois